Projekt rodinného domu Písek 2.1

112515
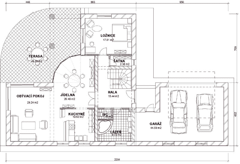
Projekt rodinného domu Písek 2.1

Rodinný dům 6+1, obytné podkroví, podsklepený, garáž - 2stání. Zastavěná plocha: 223,91 m2. Užitná plocha: 290,21 m2.

Cena: 5 957 000,- Kč

Profesionál - dodavatel

HK Stavební spol. s r.o.
Praha 10

5

Dodavatel je v systému ePoptávka.cz registrován již 156 měsíců

Fotogalerie

Další dodavatelské nabídky