Tipy pro vyhledávání: Plastová okna, Stavební práce, Židle
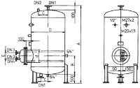
Určený pro ohřev a akumulaci teplé užitkové vody s přetlaky v plášti 6 až 10 bar a teplotou do 100°c, ve vložce 6 až 25 bar s teplotou media do 200°c. Je vybaven hrdly pro vstup a výstup pracovního media a užitkové vody, nátrubky pro tlakoměr, teploměr, cirkulaci, pojistný ventil a snímač regulace.
 
                                                     
                                                     
                                                     
                                                     
                                                     
                                                     
                                                     
                                                     
                                                     
                                                     
                                                    